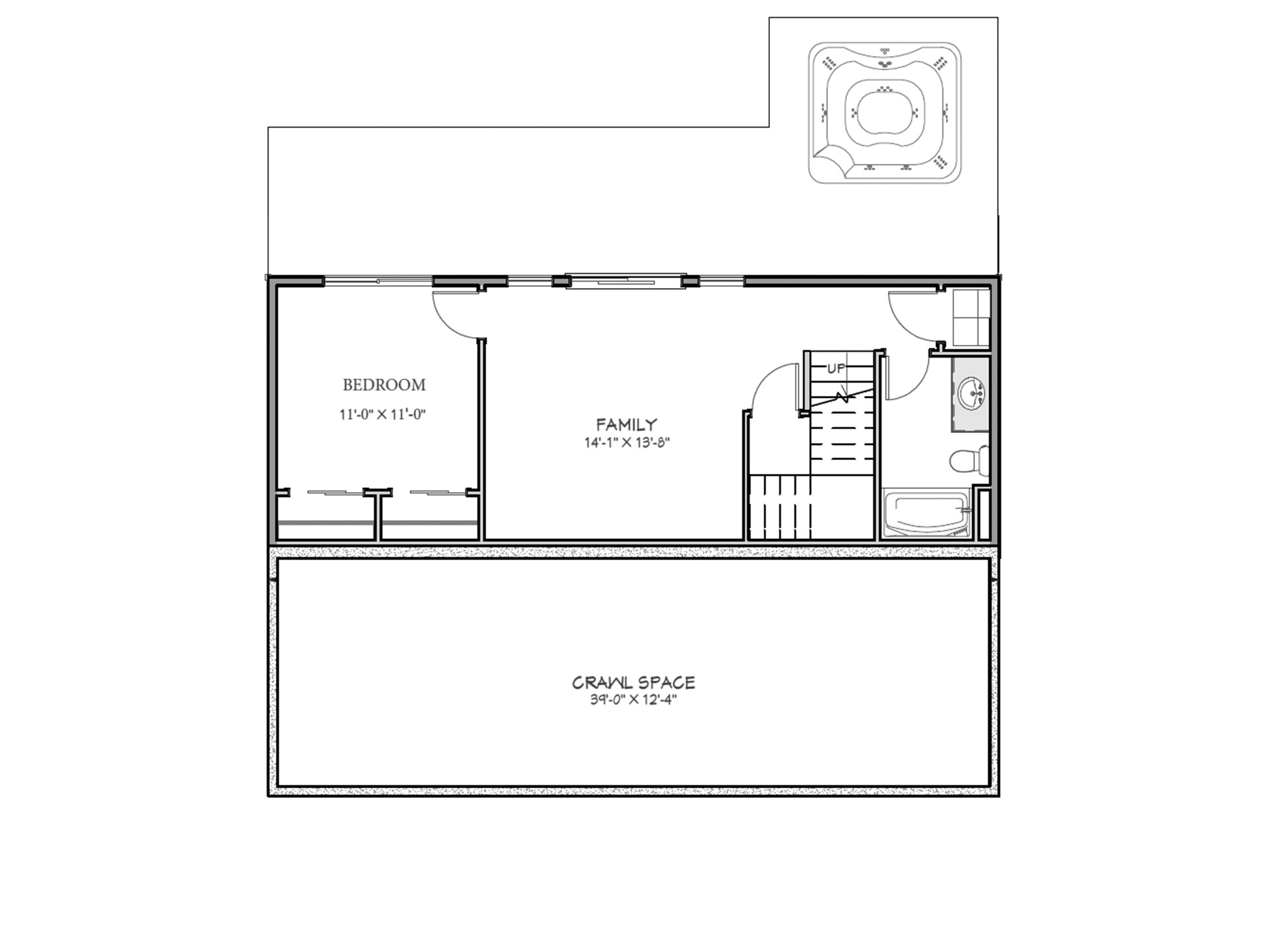
Captivating distant mountain views from this ready-to-build lot that abuts up to approximately 3.8 acres of common areas to the east. Situated in a desirable new neighborhood, Highlands at Manzanita which is located outside of the tsunami inundation zone. Approximately 5 blocks to the main street, Laneda Avenue to enjoy the cafes, restaurants, and shops. Less than 1 mile to beach access and Nehalem Bay State Park. The sale comes with a custom-designed floor plan and renderings. Utilities are located at the street.
🏡 Vacant Land: 526 Sea View Dr. (Lot 25), Manzanita, OR 97130
List Price: $210,000
Acres: 0.14
Taxes: $1,123.81
HOA Fees: $80/mnth
Call or email for additional details:
Tosha Reinmiller
541-231-5829
tosha@coastlivingre.com











